-
Title
-
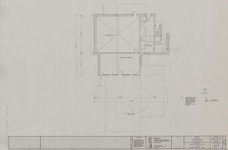
Existing Conditions First Floor Plan Garage, Graycliff, Evans, New York, February 3, 1999
-
Description
-
Plan of the first floor and existing conditions of the garage, Graycliff, Derby, N.Y., by Bero Associates Architects, May 25, 1999
-
Contributor
-
State University of New York at Buffalo. University Archives
-
Creator
-
Bero Associates Architects
-
Date
-
1999-05-25
-
Format
-
image/jpeg
-
Identifier
-
MS-0068_MC1_15_A-17
-
Language
-
en-US
-
Publisher
-
State University of New York at Buffalo. University Libraries
-
Rights
-
COPYRIGHT NOT EVALUATED. The copyright and related rights status of this Item has not been evaluated. Please refer to the organization that has made the Item available for more information. You are free to use this Item in any way that is permitted by the copyright and related rights legislation that applies to your use. https://rightsstatements.org/page/CNE/1.0/
-
This digital collection is made available for research and educational purposes. Researchers are responsible for determining copyright status, and securing permissions for use and publication of any material. Copyright for items in this collection may be held by the creators, their heirs, or assigns. Researchers are required to obtain written permission from copyright holders and the University Archives prior to reproducing or publishing materials, including images and quotations. For inquiries about reproduction requests and permissions, please contact the University Archives at: http://library.buffalo.edu/archives/.
-
Source
-
Graycliff Conservancy, Inc. collection (MS-0068)
-
Subject
-
Graycliff (Derby, N.Y.) ; Wright, Frank Lloyd, 1867-1959 ; Bero Associates Architects
-
Type
-
Image
-
Date Created
-
2024-01-25
-
Extent
-
91.9x60.7cm
-
Is Part Of
-
Architectural Drawings of Graycliff, the summer retreat of Isabelle and Darwin Martin (LIB-UA054)